オーヴィジョン岩国麻里布

ROOM PLAN間取り

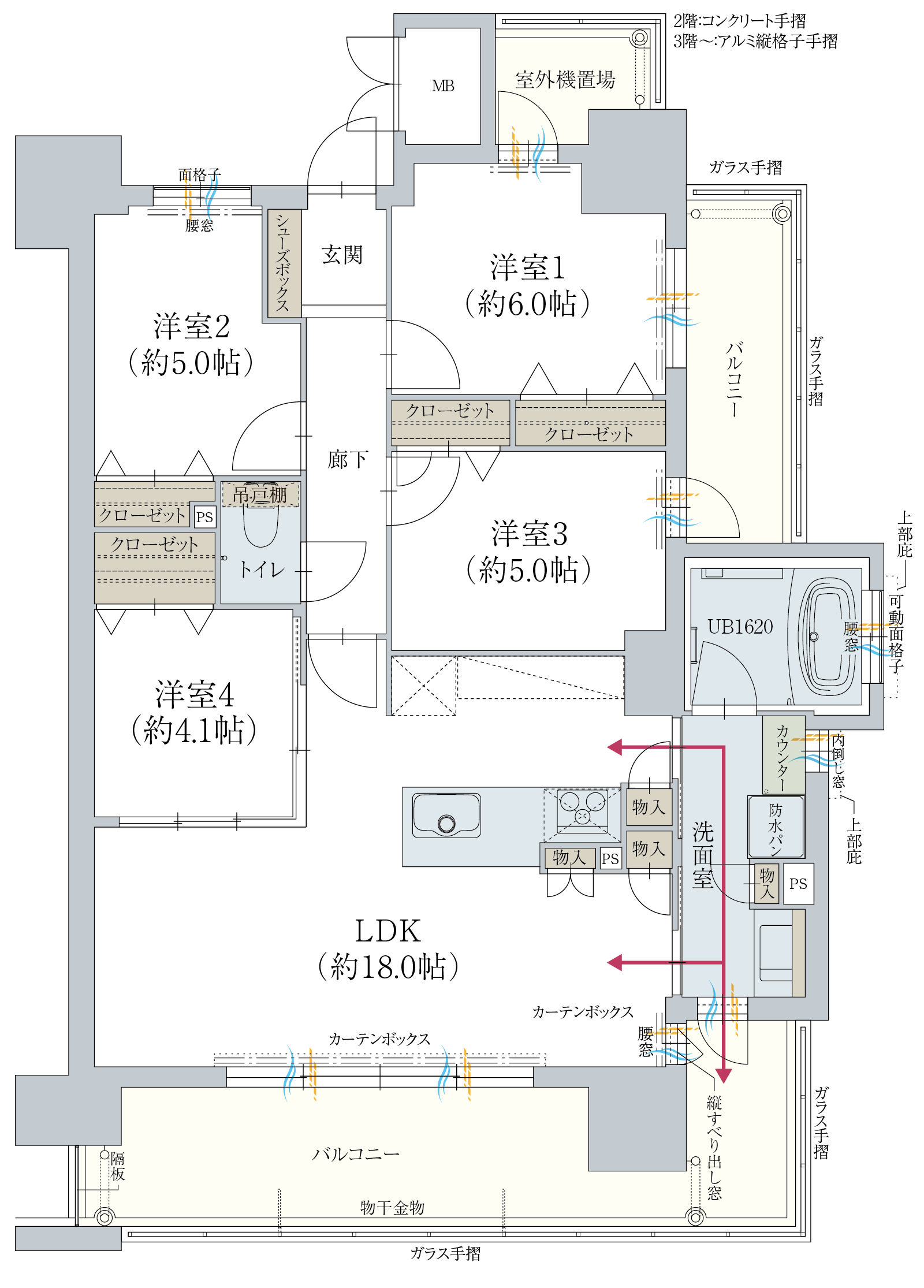
Ftype
Ftype menu
住戸表
Ftype図面
方位
Ftype図面
方位
間取り一覧に戻る

※階数によってバルコニーの形状が一部異なります。
※掲載の図面は設計段階の図面を基に描き起こしたもので、実際とは多少異なる場合があります。
※設計は、若干の変更が生じる場合がありますので、予めご了承ください

資料請求 来場予約
ページトップへ